Rehabilitación de Vivienda Unifamiliar de 1936 en Colonia Protegida

La intervención parte del respeto absoluto al valor patrimonial de la vivienda original, construida en 1936 dentro de una colonia protegida del tejido residencial madrileño. Buscamos preservar la memoria y a su vez lo adaptamos a las necesidades contemporáneas de habitabilidad, eficiencia energética y confort.

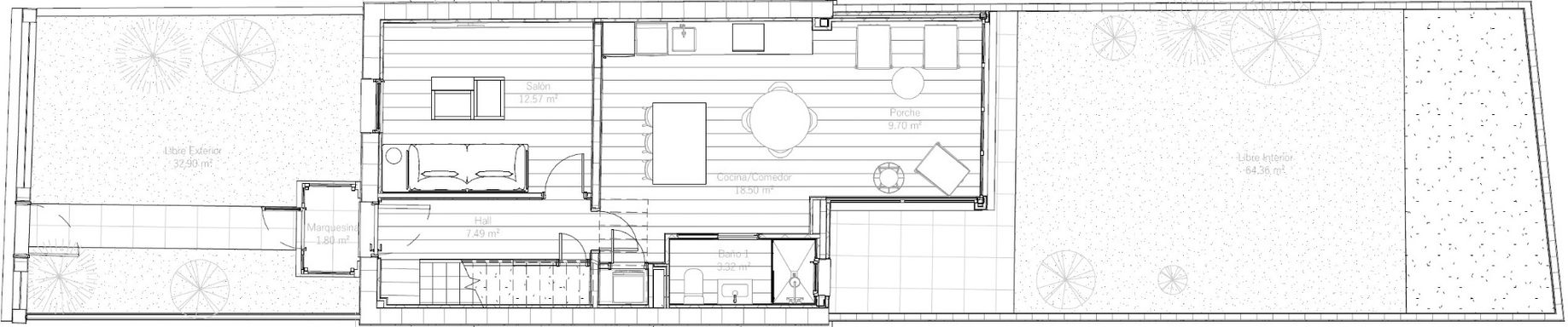
La actuación se centra en recuperar los elementos constructivos y estilísticos más representativos de la época —como la cerrajería, la carpintería original y los revocos tradicionales—, incorporando soluciones técnicas discretas que permiten mejorar el comportamiento térmico y acústico de la vivienda sin alterar su identidad. El interior ha sido reinterpretado con una distribución funcional que respeta la organización espacial original.

Este proyecto se inscribe en una visión de arquitectura responsable, comprometida con la sostenibilidad, la historia y el contexto urbano protegido en el que se enclava.

©Derechos de autor. Todos los derechos reservados.

Necesitamos su consentimiento para cargar las traducciones

Utilizamos un servicio de terceros para traducir el contenido del sitio web que puede recopilar datos sobre su actividad. Por favor revise los detalles en la política de privacidad y acepte el servicio para ver las traducciones.